Бесплатный чат с опытным специалистом
Обращайтесь в удобное для вас время — мы на связи с 9:00 до 16:00

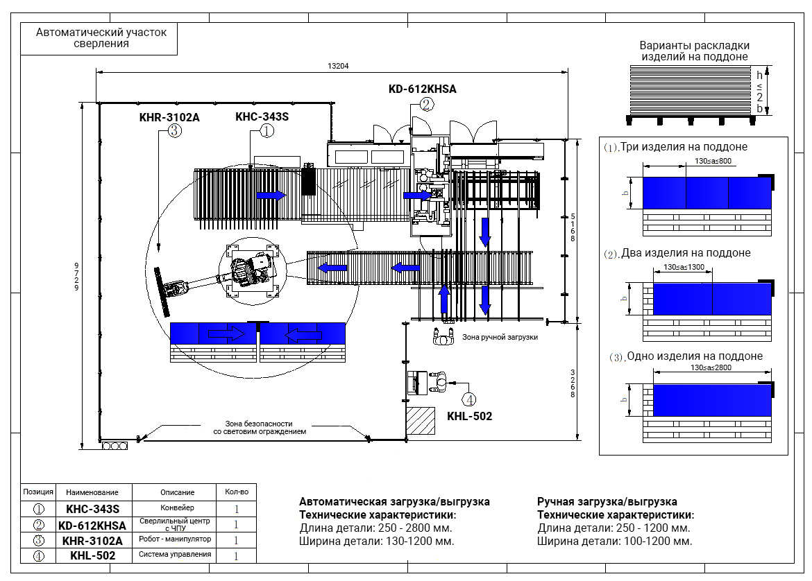
Автоматизированный участок сверления на базе сверлильно-присадочного центра с ЧПУ KD-612KHSA с роботизированной загрузкой/выгрузкой предназначен для высокоточного сверления глухих и сквозных отверстий в плоскостях и торцах мебельных деталей в проходном режиме, по заданной карте присадки. Данный роботизированный комплекс позволяет максимально исключить человеческий фактор и ускорить работу участка присадки. Это гибкое решение снизит затраты на персонал. Благодаря автоматической системе позиционирования увеличит точность обработок, а система интеллектуальной загрузки по несколько деталей увеличит производительность.
В состав линии входят:
- Сверлильно-присадочный станок KD-612KHSA.
- Входной конвейер KHС-343S с системой первичного базирования и сканера.
- Робот - манипулятор KHR-3102A для загрузки/выгрузки заготовок.
- Сверление с 6 сторон заготовок.
- Фрезерование сверху и снизу заготовки.
- Система сканирования штрихкодов на входе.
- Интеграция с любыми современными автоматическими системами.
- Робот - манипулятор для загрузки/выгрузки заготовок.
- Робот укомплектован вакуумной системой.
- Мощные и надежные конвейерные привода
- Интеллектуальная система распределения заготовок.
- Система визуального контроля и мониторинг состояния.
- Возможность работы с программами оптимизаторами с картами присадки.



Пульт управления с системой технического зрения - установленная на кронштейне автономная смарт-камера производства компании DATALOGIC в автоматическом режиме сканирует все проходящие штрих-коды.

На станке установлены 3 сверлильные группы на: 12 – горизонтальных шпинделей, 35 – вертикальных шпинделей (26 – сверху, 9 – снизу). В стандартной комплектации установлены 2 фрезерных узла (3,5 кВт)и пазовальная пила.
Минимальное расстояние при сверлении двумя головами для:
- Вертикальных отверстий - 64 мм.
- Горизонтальных отверстий - 128 мм.

Станок предназначен для использования в автоматическом режиме с возможностью встраивания в линию до 3-х станков.
Станок может производить одновременную обработку двух панелей, причем сверху и снизу, в рамках одного рабочего цикла, благодаря возможности сверления с 6-ти сторон.

2 фрезерных шпинделя: верхний - 5,5 кВт, нижний - 3,5 кВт, 18000 об/мин (сверху и снизу) для пропиливания прямолинейных и криволинейных пазов.

Пазовальный узел с пилой (диаметр диска 120 мм).

Возможность работы со всеми популярными программами оптимизации карт присадки.

При разработке станка были рассчитаны и смоделированы максимально допустимые нагрузки и требования, предъявляемые к конструкции станка. Сварная станина проходит отпуск для снятия всех внутренних напряжений в материале, далее происходит обработка на высокоточном оборудовании с ЧПУ.

Разгрузочный конвейер оснащен ременными приводами и сенсорами движения.

Позиционирование заготовки на станке осуществляется благодаря автоматическому боковому выравнивателю. После считывания штрих-кода, боковой выравниватель подходит на максимально близкое расстояние согласно размерам детали. Заготовка упирается в нулевую точку по оси X, и боковой выравниватель позиционирует её по оси Y. Далее два пневматических захвата уводят деталь в рабочую зону станка для дальнейшей обработки.

Мощный вертикальный прижим надежно позиционирует заготовку. Работает синхронно со сверлильным узлом.

Передвижные плиты в зоне сверления позволяют выполнять сквозную фрезеровку.

Блок централизованной смазки позволит своевременно обслуживать труднодоступные узлы.
Доставка
Доставка товара осуществляется оператором Новая Почта или с помощью самовывоза. Возможна также доставка другой почтовой компанией по предварительной договоренности с менеджером.
Срок выполнения заказа и доставки от 1 до 3 дней.
Сумма доставки рассчитывается индивидуально почтовым оператором в зависимости от выбранного вами товара, формы оплаты и удаленности вашего населенного пункта.
Оплата
Оплату можно осуществить онлайн на сайте через специальный сервис, связавшись с нашим менеджером по телефону, произведя оплату на карту Приватбанка, оплатить при получении при самовывозе, оплатить при получении на почте, произвести безналичный расчет для юридических лиц.