Безкоштовний чат з досвідченим фахівцем
Звертайтесь у зручний час — ми на зв’язку з 9:00 до 16:00

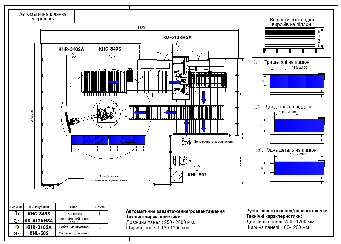
Автоматизована ділянка свердління на базі свердлильно-присадкового центру з ЧПК KD-612KHSA з роботизованим завантаженням/вивантаженням призначена для високоточного свердління глухих та наскрізних отворів у площинах та торцях меблевих деталей у прохідному режимі, по заданій карті присадки. Цей роботизований комплекс дозволяє максимально виключити людський фактор та прискорити роботу ділянки присадки. Це гнучке рішення зменшить витрати на персонал. Завдяки автоматичній системі позиціонування збільшить точність обробок, а система інтелектуального завантаження по декілька деталей збільшить продуктивність.
До складу лінії входять:
- Свердлильно-присадний верстат KD-612KHSA.
- Вхідний конвеєр KHС-343S із системою первинного базування та сканера.
- Робот - маніпулятор KHR-3102A для завантаження/вивантаження заготовок.
- Свердління із 6 сторін заготовок.
- Фрезерування зверху та знизу заготовки.
- Система сканування штрих-кодів на вході.
- Інтеграція із будь-якими сучасними автоматичними системами.
- Робот - маніпулятор для завантаження/вивантаження заготовок.
- Робот укомплектований вакуумною системою.
- Потужні та надійні конвеєрні приводи
- Інтелектуальна система розподілу заготовок.
- Система візуального контролю та моніторинг стану.
- Можливість роботи з програмами оптимізаторами із картами присадки.



Пульт управління із системою технічного зору - встановлена на кронштейні автономна смарт-камера виробництва компанії DATALOGIC в автоматичному режимі сканує всі штрих-коди, що проходять.

На верстаті встановлено 3 свердлильні групи на: 12 – горизонтальних шпинделів, 35 – вертикальних шпинделів (26 – зверху, 9 – знизу). У стандартній комплектації встановлені 2 фрезерні вузли (3,5 кВт) та пазувальна пилка.
Мінімальна відстань при свердлінні двома головами для:
- Вертикальних отворів – 64 мм.
- Горизонтальних отворів – 128 мм.

Верстат призначений для використання в автоматичному режимі з можливістю вбудовування до лінії до 3-х верстатів.
Верстат може проводити одночасну обробку двох панелей, причому зверху і знизу, в рамках одного робочого циклу завдяки можливості свердління з 6-ти сторін.

2 фрезерних шпинделя: верхній – 5,5 кВт, нижній – 3,5 кВт, 18000 об/хв (згори та знизу) для пропилювання прямолінійних та криволінійних пазів.

Пазувальний вузол із пилкою (діаметр диска 120 мм).

Можливість роботи з усіма популярними програмами оптимізації карт присадки.

При розробці верстата були розраховані та змодельовані максимально допустимі навантаження та вимоги до конструкції верстата. Зварна рама проходить відпуски для зняття всіх внутрішніх напруг у матеріалі, далі відбувається обробка на високоточному обладнанні з ЧПК.

Розвантажувальний конвеєр оснащений ремінними приводами та сенсорами руху.

Позиціонування заготовки на верстаті здійснюється завдяки автоматичному бічному вирівнювачу. Після зчитування штрих-коду, бічний вирівнювач підходить на максимально близьку відстань відповідно до розмірів деталі. Заготівка упирається в нульову точку по осі X, і бічний вирівнювач позиціонує її по осі Y. Далі два пневматичні затискачі ведуть деталь в робочу зону верстата для подальшої обробки.

Потужний вертикальний притиск надійно позиціонує заготівлю. Працює синхронно із свердлильним вузлом.

Пересувні плити в зоні свердління дозволяють виконувати наскрізне фрезерування.

Блок централізованого змащення дозволить своєчасно обслуговувати важкодоступні вузли.
Доставка
Доставка товару здійснюється оператором Нова Пошта або за допомогою самовивозу. Також можлива доставка іншою поштовою компанією за попередньою домовленістю з менеджером.
Термін виконання замовлення та доставки від 1 до 3 днів.
Сума доставки розраховується індивідуально поштовим оператором в залежності від вибраного вами товару, форми оплати та віддаленості вашого населеного пункту.
Оплата
Оплату можна здійснити онлайн на сайті через спеціальний сервіс, зв'язавшись з нашим менеджером за телефоном, зробивши оплату на карту Приватбанк, оплатити при отриманні при самовивозі, оплатити при отриманні на пошті, зробити безготівковий розрахунок для юридичних осіб.