
The automated drilling area based on the KD-612KHSA CNC drilling center with robotic loading/unloading is designed for high-precision drilling of blind and through holes in the planes and ends of furniture parts in the through mode, according to a given drilling map. This robotic complex allows you to eliminate the human factor as much as possible and speed up the work of the additive section. This flexible solution will reduce personnel costs. Thanks to the automatic positioning system, it will increase the accuracy of processing, and the intelligent loading system for several parts will increase productivity.
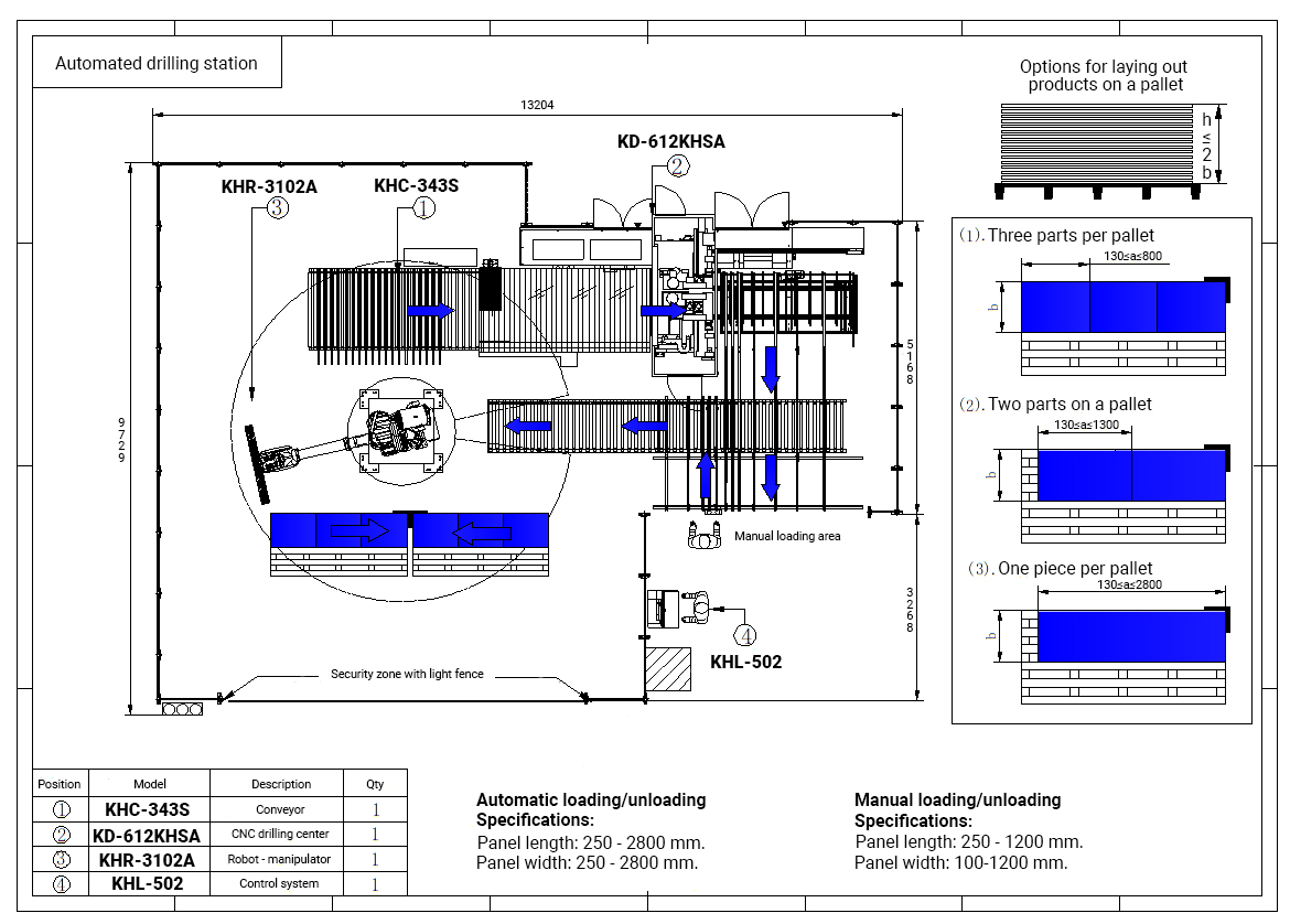
The line includes:
- Drilling machine KD-612KHSA .
- Input conveyor KHC-343S with primary locating system and scanner.
- Robot - manipulator KHR-3102A for loading / unloading workpieces.
- Drilling from 6 sides of workpieces.
- Milling from the top and bottom of the workpiece.
- Barcode scanning system at the entrance.
- Integration with any modern automatic systems.
- The robot is a manipulator for loading/unloading workpieces.
- The robot is equipped with vacuum system.
- Powerful and reliable conveyor drives
- Intelligent billet distribution system.
- Visual control system and condition monitoring.
- Ability to work with optimizer programs with additive maps.



A control panel with a vision system - an autonomous smart camera manufactured by DATALOGIC, mounted on a bracket, automatically scans all passing barcodes.

There are 3 drilling groups installed on the machine: 12 - horizontal spindles, 35 - vertical spindles (26 - from above, 9 - from below). As standard, 2 milling units (3.5 kW) and a grooving saw are installed.
Minimum distance when drilling with two heads for:
- Vertical holes - 64 mm.
- Horizontal holes - 128 mm.

The machine is designed for use in automatic mode with the possibility of embedding up to 3 machines in a line.
The machine can process two panels at the same time, both top and bottom, within one working cycle, thanks to the possibility of drilling from 6 sides.

2 milling spindles: upper - 5.5 kW, lower - 3.5 kW, 18000 rpm (top and bottom) for cutting straight and curved grooves.

Grooving unit with a saw (disk diameter 120 mm).

Ability to work with all popular programs for optimizing drilling maps.

During the development of the machine, the maximum allowable loads and requirements for the design of the machine were calculated and modeled. The welded frame is tempered to relieve all internal stresses in the material, then it is processed on high-precision CNC equipment.

The discharge conveyor is equipped with belt drives and motion sensors.

The positioning of the workpiece on the machine is carried out thanks to the automatic lateral alignment. After reading the barcode, the side aligner moves as close as possible to the dimensions of the part. The workpiece rests on the zero point along the X axis, and the side leveler positions it along the Y axis. Then two pneumatic grippers take the workpiece into the working area of the machine for further processing.

The powerful vertical clamp securely positions the workpiece. Works synchronously with the drilling unit.

Mobile plates in the drilling area allow for through milling.

The centralized lubrication unit will allow you to timely service hard-to-reach units.
Delivery
The goods are delivered by the Packeta, Fedex, DHL, UPS operator or by self-delivery. Delivery by another postal company is also possible upon prior agreement with the manager.
The term of order fulfillment and delivery is from 3 to 14 days.
The delivery amount is calculated individually by the postal operator depending on the product you have chosen, the form of payment and the remoteness of your settlement.
Payment
Payment can be made online on the website through a special service, by contacting our manager by phone, making a payment to card, paying upon receipt at pick-up , paying upon receipt at the post office, making a non-cash payment for legal entities.