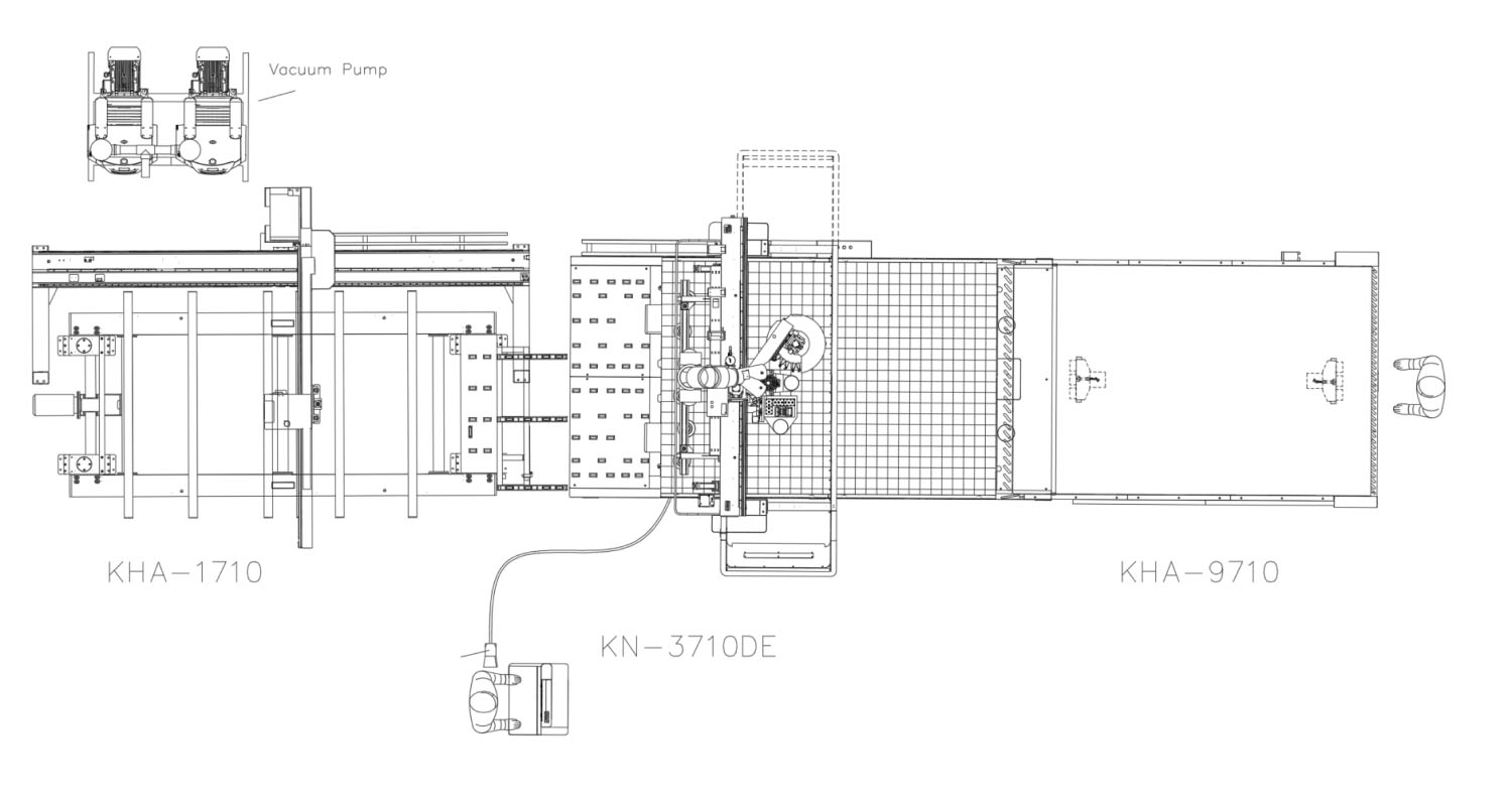
Project: Automated line based on CNC machining center KN-3710DE (old design)