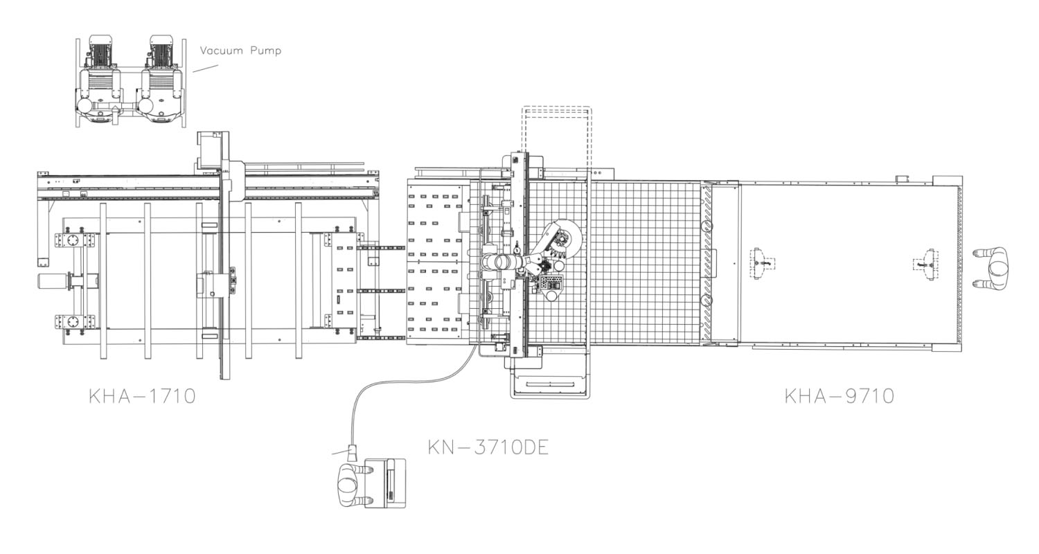
The automated line based on the KN-3710DE CNC machining center delivers high-performance sheet cutting combined with flexible workpiece processing. Sheets are loaded by a loader onto the KHA-1710TS table equipped with a label printer, which automatically applies markings to the future workpiece locations. A scanner reads these labels, enabling fast auto-configuration of the multiple machines in the line.
Next, the KN-3710DE machining center uses vacuum modules to transfer the sheet into the machine’s working area, where linear and curvilinear cutting is performed. Thanks to its drilling head with 10 vertical spindles and a 12-position automatic tool changer, the machine offers high processing flexibility. Cutting, drilling, and milling operations are performed in a single work cycle. This significantly reduces total operation time and lowers production costs.
Once machining is complete, the finished workpieces are automatically moved to the unloading table KHA-9710, while the working surface is cleaned of sawdust simultaneously. If needed, the line can be additionally equipped with a robotic vacuum manipulator that unloads parts onto pallets or a conveyor. This setup is ideal for modern furniture production facilities, where speed, precision, and fast adaptation to various production tasks are crucial.

Key advantages of the automated line:
- High-performance linear and curvilinear cutting of sheet materials
- Stable industrial-grade product quality with minimized human error
- Automatic labeling and machinery auto-configuration via labels
- Flexible processing enabled by the drilling head and 12-position tool changer
- Combination of cutting, drilling, and milling in a single cycle.




Write a comment